Arthur Road is ideally positioned between Holloway Road and Hornsey Road.
Holloway Road underground stations (Piccadilly Line) is approx. 600m away and both the Sobell Sport’s Centre and the Emirates Stadium are just moments from the property.
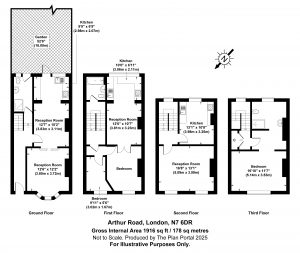
Arthur Road comprises fine Victorian town houses. This property is the largest 4 storey type with ground and first floor rear extensions. The rear garden extends to approx. 50ft southerly aspect. The property has been well maintained, The current layout has been configured for a large family with additional kitchen facilities on several levels and three bathrooms. The versatile accommodation can easily be reconfigured to provide 6-7 bedrooms with a ground floor double reception, or alternatively 5 bedrooms with 4 reception rooms and a kitchen.













